Commerciële ruimte casco.
Herenthout
€ 659 340
Commercieel centrum
399m2
Molenstraat 23, 2270 Herenthout
Nieuwbouw commerciële ruimte, zeer gunstig gelegen op de hoek van de Molenstraat - Zwanenberg dit nabij het marktplein en de kerk.
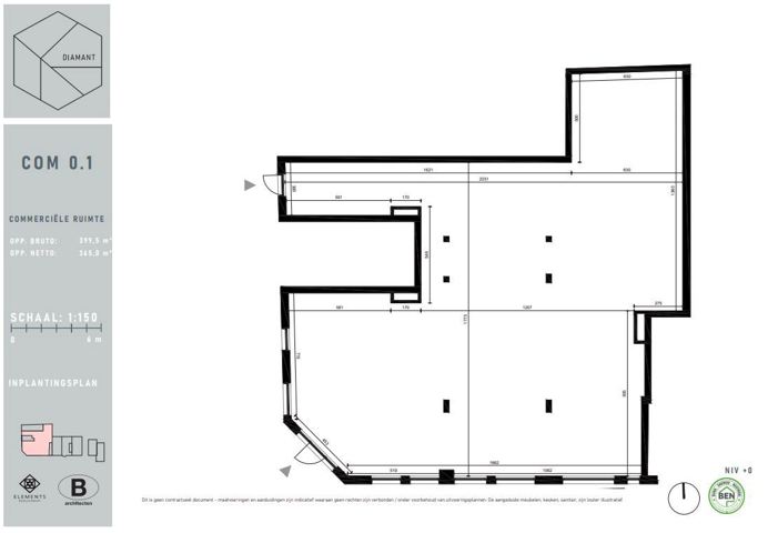
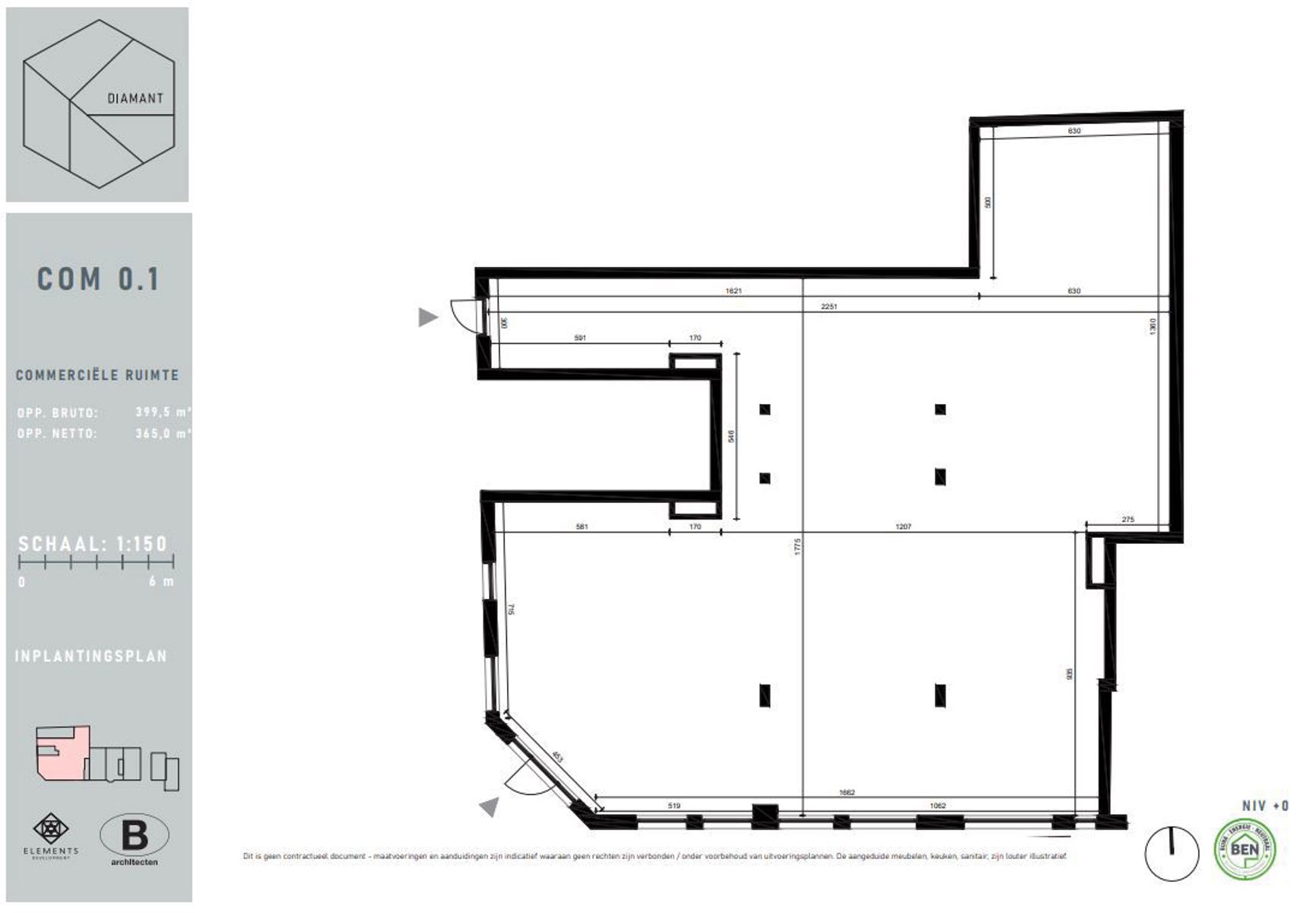
De commerciële ruimte bevindt zich in het nieuwbouwproject 'Diamant', bestaande uit 18 appartementen en 2 woningen.
De bruto vloeroppervlakte bedraagt ca. 399m², deze zal casco opgeleverd worden. Daarnaast beschikt de ruimte over veel raampartijen en een zéér goede visibiliteit. De handelsruimte is ook dienstig voor commerciële doeleinden, kantoren of voor vrije beroepen.
Extra info: Berging in het ondergronds complex inbegrepen in de prijs I Oplevering voorzien 2024 I BEN-project I Watertoets: P-score: D I G-score: D I infoplicht: Vg, Wg, Gvv, Gvkr, Gmo I EPB in opmaak.
De commerciële ruimte bevindt zich in het nieuwbouwproject 'Diamant', bestaande uit 18 appartementen en 2 woningen.
De bruto vloeroppervlakte bedraagt ca. 399m², deze zal casco opgeleverd worden. Daarnaast beschikt de ruimte over veel raampartijen en een zéér goede visibiliteit. De handelsruimte is ook dienstig voor commerciële doeleinden, kantoren of voor vrije beroepen.
Extra info: Berging in het ondergronds complex inbegrepen in de prijs I Oplevering voorzien 2024 I BEN-project I Watertoets: P-score: D I G-score: D I infoplicht: Vg, Wg, Gvv, Gvkr, Gmo I EPB in opmaak.
Lees verder+
Prijs
€ 659 340
Bouwjaar
2023
Bewoonbare opp.
399m2
Alle kenmerken
Algemeen
Bewoonbare opp.
399m2
Parking
Aansluitingen
Riolering
Elektriciteit
Water
Basisuitrusting
Lift
Dubbele beglazing
Keuken - type
Niet geïnstalleerd
Certificaten
Bodemattest
Gebouw
Bouwjaar
2023
In cijfers
Aantal winkels
1
Gevelbreedte - breedte
27m
Lasten & opbrengst
Onder BTW stelsel
Omgeving
Type buurt
Woonkern
Oriëntatie van de voorgevel
Zuidwesten
O-Peil
Niet gelegen in een overstromingsgevoelig gebied
G-score
DP-score
DTechnische uitrusting
Type schrijnwerkerij
Aluminium
Bijlagen
Afstand
winkels
winkels
50m
Afstand
scholen
scholen
500m
Afstand
openbaar vervoer
openbaar vervoer
350m



